Stoke Newington #63
Project
Stoke Newington #63
Client
Family of 4
Brief
Side-infill extension, kitchen & dining hub, 2 storey extension, dormer extension.
Location
Hackney N16
Budget
£190k
Duration
26 weeks - Autumn 2015
Project Overview:
The property is a Victorian end-of-terrace family home in Stoke Newington, nestled between Church Street and Abney Park Cemetery, within the Stoke Newington Conservation Area.
The existing property had a number of low-grade existing additions, including a ground floor infill extension, upper ground floor bathroom extension, and partially converted attic space. As such the primary objective was to overhaul the existing property, bringing the quality of the existing additions up to modern standards in terms of aesthetics & function and also building performance. Planning approval was then gained for a 2nd-floor extension (to accommodate a much needed second bathroom) and the addition of a large-format rear dormer extension, adding a large formal bedroom.
A new pebbledash finish was applied to the rear of the property to provide a sympathetic and cost-effective method of unifying the various existing and new extensions. The tone and texture of this finish, whilst not being original, and perhaps having negative associations from various mid-century applications, provides a neutral, earthy finish which we think sits more comfortably within this particular context than a comparable coloured render system.
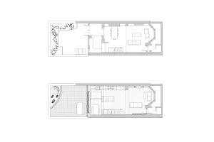
The existing basement had a particularly low ceiling height, and the space was disrupted by a number of structural walls. The main intent at this level was to open the space up as much as possible, whilst also working within the existing head height and structural constraints in order to produce an efficient/ relatively low-cost intervention. The space was required to provide a new-open plan kitchen and dining hub with improved views of and access to the rear garden, a new family living room, and a utility zone housing the laundry appliances and general household storage. A full height 3-panel bi-fold door system is used to maximise light into the basement and also maximise views of the newly finished garden and surrounding context of Church Street and Abney Park Cemetery.
The existing attic was also of very limited head height and it was necessary to drop the floor to the rear half of the new attic dormer to allow adequate head height to the main portion of the room, with the bed then set on a raised platform to the front of the property - this technique works with the structural strategy of the original house, creating an efficient solution which also allows the existing ceiling height to the existing main bedroom at first floor to remain untouched.
A new family bathroom was then fitted at first floor level, with a new shower room provided within a new second floor extension.
Team:
Architect: ARCHEA
Building Control: Assent South East
Engineer: DEC Consulting Engineers Ltd
Contractor: Space Flower