Stoke Newington #23
Project
Stoke Newington #23
Client
Couple
Brief
Rear extension, kitchen & dining hub, full refurbishment.
Location
Hackney N16
Budget
£70k
Duration
18 weeks - Summer 2013
Project Overview:
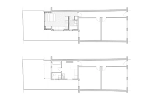
The property occupies the ground floor of a mid-Victorian terrace comprising purpose built maisonettes, located on the outskirts of Stoke Newington, bordering Stamford Hill.
The principles of the development were to reconfigure the badly laid out and extremely dated kitchen and bathroom to the rear projection of the property, creating a new dining and living function within the kitchen area, and also to re-engage the property with the underused and obscured rear garden.
The additional volume sits directly under an existing (rather run down) balcony to the upper maisonette and involved the replacement of this dilapidated structure with a new contemporary roof terrace and balustrade. Internally a new bathroom is located towards the centre of the plan, allowing the new kitchen/ dining hub to spread out into the new volume and benefit from significantly increased visual and physical connection with the rear garden, and bringing increased levels of natural light deep into the plan. New bathroom and kitchen windows were also introduced to the flank wall of the side return to maximise levels of natural light and ventilation.
The new volume is finished in pre-patinated zinc cladding, and with the neat contemporary lines of the new roof terrace, balustrade and timber composite glazing system, adds a simple yet conspicuous modern addition which helps unlock the original property's true potential.
Team:
Architect: ARCHEA
Building Control: Assent South East
Engineer: DEC Consulting Engineers Ltd
Contractor: Lakewood Build