Peckham #121
Project
Peckham #121
Client
Robert & Rebecca
Brief
Internal reconfiguration & upgrade.
Location
Lewisham SE15
Budget
£100k
Duration
22 weeks - Winter 2019
Project Overview:
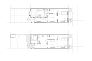
The property is a Victorian mid-terrace home located just off of the Queens Road in Peckham.
The initial brief looked to relocate the existing ground floor bathroom to the existing 3rd bedroom, and at the same time replace this 3rd bedroom by converting the attic. Based on the available budget, and the extent of works required through the rest of the property, it was agreed to focus the initial budget on the existing accommodation and maximise the function and performance of the existing property, with any further extension in the attic put aside for a future phase of work.
Despite this refocussing of the brief and budget, due to the condition of much of the existing fabric (both rear & side extensions were in very poor condition) together with requiring new kitchen, bathroom, WC, utility, windows and extensive decoration & storage throughout, the budget was still stretched and therefore the decision was made to retain the existing side & rear extensions; upgrading, re-insulating & damp-proofing as required. For practical purposes it was then decided to re-clad the side extension with pre-patinated zinc in order to fully weather this element, and also to provide a sufficiently workable material to deal with the numerous awkward junctions present.
After these key strategies were agreed, the principle objective was to reconfigure the whole ground floor in order to provide a simple modern open-plan kitchen & dining space, with significantly improved visual connection to the rear garden, and also a direct physical connection with the double reception space. A ground floor WC & utility was also accommodated, accessed from the hallway, in order to keep these functions separate from the main living spaces.
At first floor a new bathroom was provided with separate shower enclosure and airing cupboard. New Idealcombi composite windows were provided to bathroom and 2nd bedroom (to the rear of the house), with new double glazed sash windows to the main bedroom and front reception (to the front of the house). A new heating system was incorporated with new modern column radiators to all rooms. As usual a select palette of standard materials and products were used to provide a coordinated, high performance & cost effective finish.
Team:
Architect: ARCHEA
Building Control: Assent South East
Engineer: DEC Consulting Engineers Ltd
Contractor: London Dream Building
01
How did you find out about ARCHEA?
We researched different architectural practices online using websites like Houzz and RIBA. Through this process we come up with a short list of three firms. We spoke with each of the firms and ARCHEA were our favoured practice.
02
How much did you know about domestic architectural services before you commenced the project?
This renovation was the first time we had worked with an architect. We wanted to maximise the potential in our property and felt the best way to do this was with the help of an architect. We had employed another firm to visit our property to run through our initial ideas. We found this helpful to understand the processes involved and get an indication on what was feasible, within our limited budget. We clicked with Richard and Luke from the outset so proceeded with ARCHEA.
03
How would you describe and value the design & management process provided by ARCHEA?
ARCHEA's guidance during the design process was invaluable. We felt that they really understood our brief and we liked the ARCHEA ethos of ensuring the core of the property was structurally sound and energy-efficient; a blank canvas that we would make our own. Whilst ARCHEA have a clear aesthetic they do not have a dogmatic approach to design and were always open to exploring our ideas; the process felt truly collaborative. The sheer number of decisions that need to be made during the design process could have been daunting but ARCHEA’s structured approach/ system helped us to focus on what was important to us versus areas where we were happy to defer to their experience/recommendations (such as selecting the window system). As part of the ARCHEA process they provide extensive core product recommendations which we used as a jumping point to tailor the product choices to suit our own taste and budget. We benefited greatly from ARCHEA’s network of suppliers.
04
How happy were you with the builders and the build process?
LDB were introduced to us by ARCHEA. We researched other firms but are really happy that we appointed them, they were excellent. Communication was a strong point of the company, as was their attention to detail. LDB sourced the majority of the materials which was a valuable service. We maintained a great working relationship with them throughout the build & the finishes achieved are immaculate. We have subsequently had further work carried out by LDB and could not recommend them more highly.
05
How happy are you with the finished project?
We lived in our house for a year prior to commencing the renovation work. Whilst we loved the period features and character of the property, it was in a poor condition. Space was not being fully utilized, the layout of the rooms made the house seem cramped and dark & the energy efficiency of the house was terrible. The finished renovation has addressed all these issues, and whilst the footprint of the property has not increased, ARCHEA’s design has increased the sense of space and our house is now much better suited to modern living. It was important to us that the renovations were sympathetic to the age of the house and we are so pleased that ARCHEA understood that, and that the finished project has managed to retain the original character of the house. The more modern “new” areas perfectly compliment the older parts of the house.
06
What was the most enlightening part of the whole process?
The sheer level of planning required for success! The ARCHEA approach was fundamental to ensuring our project was delivered on time and within budget. Setbacks and minor delays are inevitable but ARCHEA’s detailed planning enabled efficiencies to be gained in other areas of the project when minor setbacks did occur.
07
Which part of the process do you believe needs the most refining or explaining to improve the overall client experience?
We would have benefited from a better understanding of the ballpark cost of our original renovation plans earlier in the process. Whilst estimating such costs is obviously an inexact science, even as unexpected costs do arise, a ballpark estimate in the initial stages would have helped us think about staging and what was really important to us. Ultimately this would have also reduced the design burden on ARCHEA.
08
Do you have any key insights that you would give to new clients embarking on their own renovation project?
If a client has a limited budget (as we did) compromise is inevitable; we would recommend prioritising the structural integrity and energy efficiency of the property. Cosmetic changes can always be carried out at a later date.
09
Out of 1-10, how would you rate ARCHEA’s service?
9 - The service provided by ARCHEA was exceptional.