Nunhead #62
Project
Nunhead #62
Client
Family of 3
Brief
Rear extension, kitchen & dining hub, whole house refurbishement.
Location
Southwark SE15
Budget
£100k
Duration
32 weeks - Winter 2014
Project Overview:
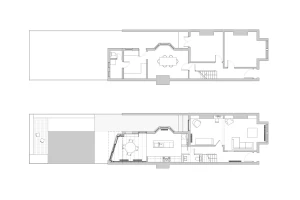
The property is an Edwardian mid-terrace house in Nunhead and was in reasonable condition but in need of significant upgrade and modernisation.
The principal objective was to replace the existing low-grade rear extension and provide a new open-plan kitchen and dining area. The brief also included the creation of a downstairs WC, full upgrade and refinishing of the house, new windows & patio doors, and re-landscaping of the rear garden.
The first step was to remove the existing rear extension and replace with a smaller canted extension with a projecting roof; this created both a single clear volume to house the kitchen and dining area, but also formed a covered external area in order to enable the bi-fold doors to be opened and utilised in a much broader range of weather conditions. The raised patio area creates a large uninterrupted floor level which enables the dining table to be easily lifted and carried a few meters out onto the covered external patio.
The open-plan kitchen and dining areas were then defined by a step in the soffit level, and rich blue through-coloured MDF paneling was used to line the dining area to further differentiate this space. Grey through-coloured MDF doors were then applied to standard IKEA kitchen modules to create a high-quality bespoke kitchen within a modest budget.
New timber composite patio doors were then provided to the kitchen and main living spaces to increase natural light and provide access points to the re-landscaped garden.
All internal finishes were replaced with a palette of vibrant materials and colours to create a bespoke modern characteristic within an otherwise familiar Victorian family home.
Featured on Houzz:
Renovation of Victorian Mid Terrace House - Now Light & Bright!
A Dated Extension is Tweaked to Create More Space
How to Use Texture to Zone Your Open Plan Home
6 of the Best UK Hallway Transformations
Team:
Architect: ARCHEA
Building Control: Assent South East
Engineer: DEC Consulting Engineers Ltd
Contractor: Mabico