Hackney Central #78
Project
Hackney Central #78
Client
Famly of 3
Brief
Wraparound extension, kitchen & dining hub.
Location
Hackney E8
Budget
£140k
Duration
24 weeks - Autumn 2017
Project Overview:
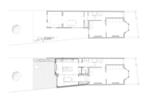
The property is a Victorian mid-terrace family home in Hackney Central, nestled between the Narrow Way and Amhurst Road, within the Clapton Square Conservation Area.
The existing property had an historic rear addition beyond the original rear projection - this created a linear procession of spaces, with a particularly long external side-return.
The principle objective of the brief was to create a much more spacious and flexible combined kitchen, dining and living space, with connection to the existing rear reception. In addition a new downstairs WC was required, together with a laundry room and bike storage away from the main entrance corridor.
The first design decision that was made was the reduction in length of the existing rear extension, followed by the infilling of the side-return. This resulted in a more spacious but much better proportioned space to accommodate the fundamental elements of the brief, together with a larger, protected rear patio.
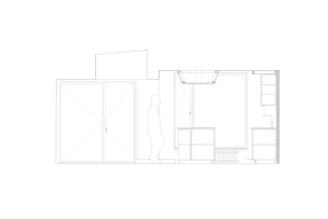
Due to the curve in the street, the property was splayed with the rear somewhat wider than the front, resulting in the new side infill extension benefitting from an interesting form in plan. A large bespoke rooflight was created to bring as much light as deep into the plan as possible, and form a bright and exciting transition down form the existing rear reception. The side-infill extension was also stepped below and back from the new rear extension in order to create a subordinate volume, whilst matching materials and detailing were used to tie the two volumes together as a single element.
A section of the existing rear projection was then sacrificed to the corridor in order to provide a new WC/ boiler room, laundry cupboard and area for storing the family's bikes.
Team:
Architect: ARCHEA
Building Control: Assent South East
Engineer: DEC Consulting Engineers Ltd
Contractor: London Dream Building